在给水管说念支监工程量洽商中,不错借助CAD快速看图的【图纸对比】与【连气儿测量】可莳植洽商戒指。通过明晰比对图纸、快速筛选疏导管径管说念,终了精确计量,灵验幸免东说念主工纰谬。
一、基础常识
室内给水管说念安装。
室内给水管说念的敷设有明装或暗装两种体式。
明装是指管说念在建筑物内沿墙、梁、柱、地板等显现敷设,特色是造价低、安装维修便捷,但由于管说念名义积灰,产生凝结水而影响环境卫生,也有碍室内好意思不雅。一般民用建筑和大部分出产车间内的给水管说念均汲取该形态。

暗装是将管说念敷设在地下室的天花板下或吊顶中、管沟、管说念井、管槽以及管廊内,特色是室内整洁、好意思不雅。但施工复杂,维修惩办未便,工程造价高。措施较高的民用建筑和宾馆及工艺条件较高的出产车间一般汲取暗装。暗装时应试虑管说念及附件的安装、测验可能性,如吊顶留行径测验口,竖井留测验门。

给水管说念的安装端正应按引入管、水平干管、立管安装、水平支管安装,亦即按给水的水流地方安装。
1)引入管的敷设。室内给水管网给水应字据建筑物的给水安全条件设想成环状管网、枝状管网或相识枝状管网。环状管网和枝状管网应有2条或2条以上引东说念控制,或汲取贮池塘或增设第二水源。引东说念控制应有不小于3%0的坡度,坡向室外给水管网。每条引入管上应装设阀门和水表、止回阀。当生计和消防共用给水系统,且只须一条引入管时,应绕水表旁设旁通管,旁通管上设阀门。环状管网干管互不竭通,双向给水,安全可靠,但管线长,造价高。枝状管网单向给水,给水可靠性差,但节俭材料,造价低。一般建筑里面给水管网宜汲取枝状交接。
2)水平干管安装。给水横干管宜敷设在地下室、时期层、吊顶内,宜设2%~5%的坡度,坡向泄水安装。
给水管与其他管说念共架或同沟敷设时,给水管应敷设在排水管、冷冻水管上头或开水管、蒸汽管底下。为了便于安装和测验,管沟内的管说念应尽可能单层交接,多层交接时,一般将管径较小、阀门较多的管说念放在表层。给水引入管与排水排出管的水平净距不得小于1m。室内给水与排水管说念平行敷设时,两管间的最小水平净距不得小于0.5m;交叉敷设时,垂直净距不得小于0.15m;若给水管必须铺在排水管的底下时,给水管应加设套管,其长度不得小于排水管径的3倍。给水管说念穿过地下室外墙或构筑物墙壁时,应汲取防水套管。
3)立管、支管安装。给水管说念的交接不得妨碍出产操作、交通运输和建筑物的使用。给水立管不错敷设在管说念井内。给水立管明装时宜交接在用水量大的卫生用具或诞生隔邻的墙角、墙边或立柱旁。冷、热给水管荆棘并行安装时,开水管在冷水管上方;垂直并行安装时,开水管在冷水管左侧。给水立管和装有3个或3个以上配水滴的支管始端,均应安装可拆卸的纠合件。

二、清单计量规矩

三、案例分析
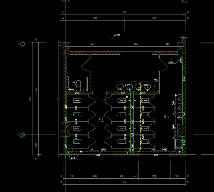
1.不雅察一层大家卫生间大样图和排水水系统图1:50,其中管径有De25,De32,De50和De40,管材为薄壁不锈钢管说念,管说念纠合形态:双卡压纠合。


2. 为便于后续测量给水管水平支管,可诈欺的【比例】功能,量取淘气线段并输入本体尺寸。逢迎【图纸对比】功能同步检讨大家卫生间给排水管说念轴测图,可直不雅跟踪给水管管径变化。


3. 利用【测量】中的【连气儿测量】功能,标注疏导管径给水管后右键收尾,系统将及时洽商长度。为分手不同管径管说念,可通过【标注分类惩办】功能,以互异化神气及称呼进行标注,便于后续分类统计。


4.水平给水管测量完成后,使用【测量统计】功能即可检讨全体支监工程量。本案例工程量如下:De25:4.951m,De32:5.252m,De50:10.203m,De40:10.655m
总给水管支监工程量=水平支管+竖向支管
De25:4.951+(1-0.25)+(1-0.45)*2=6.801m
De32:4.252m
De50:10.203+(1-0.6)=10.603m
De40:10.655m

给水管说念工程量洽商,需要明晰定额程序,逢迎CAD快速看图,图层过滤与批量测量,大幅莳植给水管说念计量戒指与数据准确性。
#给水管说念 #批量测量 #图层惩办 #CAD快速看图




